Description

Ben je op zoek naar een comfortabel sfeervol 3-kamer appartement met balkon, veel lichtinval en een garagebox in een rustige én centrale wijk? 
Dan is dit appartement in de ruim opgezette en geliefde wijk Westpolder precies wat je zoekt! 

Het goed onderhouden appartement is oorspronkelijk een 4-kamerwoning, maar is smaakvol verbouwd tot een ruim 3-kamerappartement. Hierbij zijn de woonkamer en een aangrenzende kamer samengevoegd tot één royale leefruimte van maar liefst 37 m² – ideaal voor wie houdt van licht, ruimte en openheid.
Het appartementencomplex is gebouwd in 1971 en grenst aan de achterzijde aan een groene zone met speelvoorzieningen – perfect voor gezinnen of liefhebbers van een rustige, groene leefomgeving.
Wijkwinkelcentrum Westpolder, busverbindingen, het centrum van Papendrecht, basisscholen, kinderopvang en sportfaciliteiten zijn allen gelegen op loop-/fietsafstand en de verbindingsweg N3 richting snelwegen A15 en A16 is gelegen op circa 5 autominuten. 

De vraagprijs is inclusief de ruime garagebox gelegen op de begane grond!!

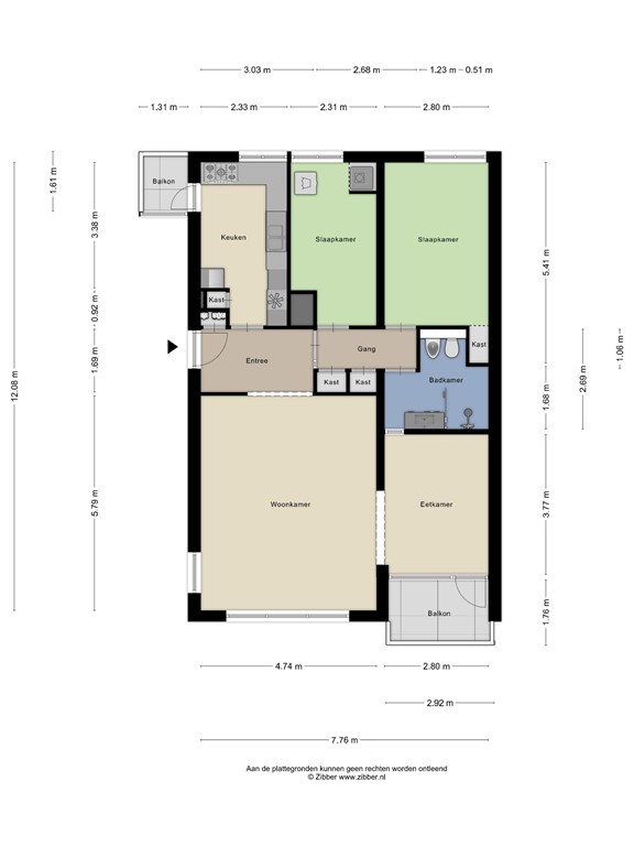
Indeling van het appartement:

Begane grond:
Verzorgde en afgesloten entree met videofooninstallatie, brievenbussen en toegang tot het trappenhuis en de liften. Via deze entree is ook direct de garagebox bereikbaar.

Eerste verdieping:
Bij binnenkomst in het appartement komt u in een ruime hal die toegang biedt tot de woonkamer, keuken en beide slaapkamers. In de hal bevinden zich tevens de meterkast en het videofoonsysteem, waarmee u eenvoudig de centrale entree op de begane grond bedient.
De royale en lichte woonkamer met eetgedeelte is circa 37 m² groot en biedt een weids uitzicht over de woonomgeving. Dankzij de ligging op het zuiden geniet u hier van veel daglicht en directe toegang tot het aangrenzende balkon.
De twee slaapkamers zijn gesitueerd aan de voorzijde van het appartement en bieden voldoende ruimte voor slaap-, werk- of logeergebruik.
De volledig betegelde badkamer is uitgerust met een douchecabine, modern wastafelmeubel, toilet én een bidet.
De L-vormige keuken beschikt over diverse inbouwapparatuur, waaronder een koel-/vriescombinatie, vaatwasser, 5-pits gaskookplaat, oven en afzuigkap en toegang tot het 2e balkon

Een licht en comfortabel appartement met alles binnen handbereik —  Een ideale woning voor wie op zoek is naar rust, gemak én groen uitzicht.
Nieuwsgierig geworden? Bel ons dan voor een bezichtiging.

Bijzonderheden:
* Bouwjaar appartement 1971. 
* Totale woonoppervlakte: ca. 90 m²
* Garagebox: ruim en privé, op de begane grond
* Kunststof kozijnen voorzien van dubbelglas
* CV ketel uit 2020
* Actieve VvE met bijdrage van €302 ,- per maand
* Gelegen op eigen grond
* Gratis parkeren voor de deur



De Meetinstructie is bedoeld om een meer eenduidige manier van meten toe te passen voor het geven van een indicatie van de gebruiksoppervlakte. De Meetinstructie sluit verschillen in meetuitkomsten niet volledig uit, door bijvoorbeeld interpretatieverschillen, afrondingen of beperkingen bij het uitvoeren van de meting. 

Bovenstaande gegevens hebben een vrijblijvende / informatieve aard en mogen alleen worden beschouwd als uitnodiging om een afspraak te maken. Er kunnen geen rechten aan worden ontleend!

Features