Beschrijving

Sfeervol wonen in hartje Ridderkerk!

Achter de voordeur van dit instapklare 3-kamerappartement schuilt een heerlijk huiselijke sfeer. Hier voel je je direct thuis! 

Het complex ligt in een rustige straat, net achter de gezellige doorgaande weg die door het centrum slingert. De bushalte bevindt zich letterlijk om de hoek, en binnen enkele minuten wandel je naar het winkelcentrum van Ridderkerk of de levendige weekmarkt aan de Jan Steenstraat.
Geen zin om te koken? Aan het Koningsplein vind je diverse restaurants en lunchrooms om gemakkelijk een maaltijd af te halen. Voor ontspanning en beweging liggen zwembad De Fakkel en meerdere sportvelden op loopafstand. En met slechts 15 minuten rijden sta je in het bruisende centrum van Rotterdam, ideaal voor een dagje winkelen.

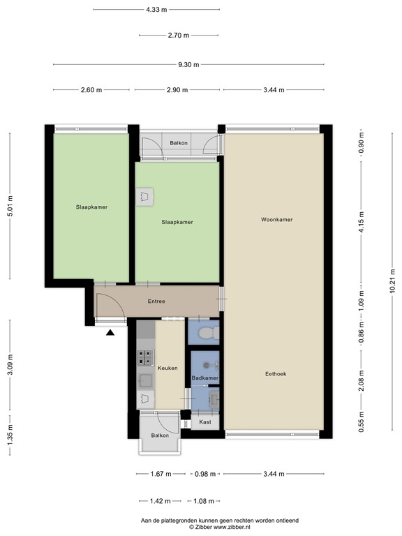
INDELING:
 
Begane grond:
Afgesloten entree met brievenbussen en trapopgang naar de verdiepingen. Op de begane grond bevindt zich de ruime privéberging met elektra.

Derde verdieping:
De ruime hal geeft toegang tot alle vertrekken. De moderne toiletruimte is voorzien van een wandcloset.
De lichte en sfeervolle woonkamer is extra ruim dankzij het samenvoegen van een voormalige slaapkamer, waardoor een fijne open eetkamer is ontstaan. Vanuit de woonkamer stap je zo het balkon aan de voorzijde op, waar je heerlijk kunt genieten van de ochtendzon.
De twee ruime slaapkamers bevinden zich aan de voorzijde.
De lichte keuken is voorzien van een combi-oven, rvs-gaskookplaat met afzuigkap, koelkast en een kleine (losse) vaatwasser. Hier vind je ook de aansluiting voor de wasmachine en toegang tot het tweede balkon, waar je ’s middags van de zon kunt genieten, vanuit de keuken bereik je de badkamer, uitgerust met een douche en wastafel.
Het appartement is voorzien van een moderne nieuwe PVC-vloer, op de keuken en toilet na.

Een sfeervol, instapklaar appartement met twee balkons, op een centrale maar rustige locatie. Perfect voor wie comfortabel wil wonen met alle voorzieningen binnen handbereik!

Bijzonderheden:
-Bouwjaar 1964
-Berging in de onderbouw
-Balkons met ochtend- en middagzon
-Parkeermogelijkheid voor de deur
-Op korte afstand van het centrum gelegen
-Energielabel C.
-Cv-ketel 2021, eigendom
-VvE bijdrage circa € 161,- per maand
-Groot deels voorzien van dubbel glas
-Eigen grond

Oplevering: In overleg, voorkeur begin januari 2026.

De Meetinstructie is gebaseerd op de NEN2580. De Meetinstructie is bedoeld om een meer eenduidige manier van meten toe te passen voor het geven van een indicatie van de gebruiksoppervlakte. De Meetinstructie sluit verschillen in meetuitkomsten niet volledig uit, door bijvoorbeeld interpretatieverschillen, afrondingen of beperkingen bij het uitvoeren van de meting.

Bovenstaande gegevens hebben een vrijblijvende / informatieve aard en mag alleen worden beschouwd als een uitnodiging om een afspraak te maken. De beschrijving, opgegeven maten en foto's zijn globale en indicatief. Er kunnen geen rechten aan worden ontleend!

Kenmerken