Beschrijving
Zoek je karakter, ruimte én comfort? Dan is deze sfeervolle jaren '30-tussenwoning in het populaire Slikkerveer precies wat je zoekt. De woning beschikt over een heerlijk lichte woonkamer met een schuifdeur naar de achtertuin, een ruime keuken, twee slaapkamers (voorheen drie) op de eerste verdieping, én derde slaapkamer gelegen op de zolder verdieping met een nokverhoging en dakkapel. Dankzij goede isolatievoorzieningen en vloerverwarming in de woonkamer is het comfort uitstekend geregeld.
De circa 17 meter diepe achtertuin is een fijne plek om te ontspannen, met volop privacy en een grote stenen schuur.
Prachtige jaren '30 tussenwoning met nokverhoging in geliefd Slikkerveer! Gelegen op loopafstand van winkels, scholen en openbaar vervoer, is dit de ideale woning voor wie graag rustig maar centraal woont.
Indeling van de woning:
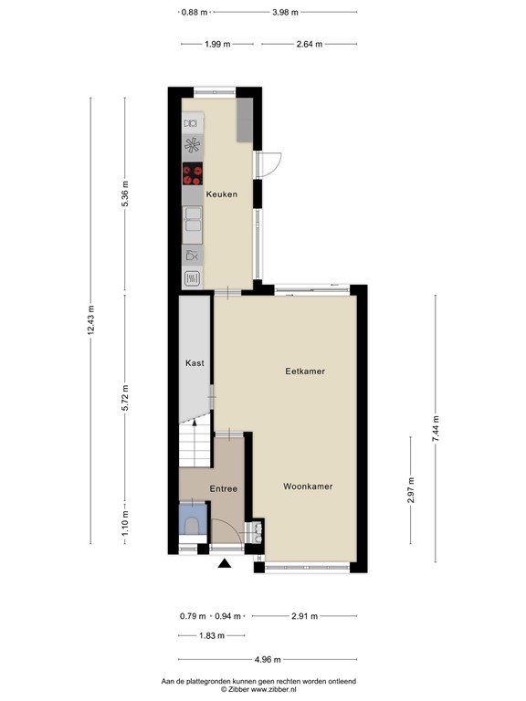
Begane grond:
Entreehal met lichte toiletruimte, meterkast en trapopgang. De woon-/eetkamer valt direct op door de uitstekende lichtinval en authentieke jaren ’30-details, zoals de erker aan de voorzijde. In de uitbouw aan de achterzijde bevindt zich de keuken. Deze is uitgevoerd in een lichte kleurstelling en biedt, net als de woonkamer, toegang tot de diepe achtertuin.
Eerste verdieping:
Twee ruime slaapkamers (voorheen drie). Grote ramen zorgen voor veel daglicht. De badkamer is netjes afgewerkt en voorzien van een regendouche, wastafelmeubel, toilet, verlaagd plafond en verwarming.
Tweede verdieping:
Dankzij de nokverhoging en dakkapellen aan zowel de voor- als achterzijde is dit een volwaardige verdieping, met een ruime derde slaapkamer en een overloop waar o.a. de cv-installatie (2013) zich bevindt.
Tuin:
Zonnige, circa 17 meter diepe achtertuin met vrijstaande schuur en achterom. Officieel dienen de buren recht van overpad te verlenen, wat goed is geregeld, zodat iedereen van zijn privacy kan genieten.
Ligging en voorzieningen:
De woning ligt op korte afstand van winkelplein Dillenburgplein en op fietsafstand van winkelcentrum De Werf. Diverse scholen bevinden zich in de directe omgeving. Er is een goede bus- en waterbusverbinding naar Rotterdam en Dordrecht.
Enkele bijzonderheden van deze woning:
Sfeervolle jaren '30-tussenwoning
Nokverhoging en dakkapellen op de tweede verdieping zorgen voor extra ruimte en licht
Kunststof kozijnen met isolerende HR++-beglazing en vloerisolatie
Elektrisch rolluiken met zonnecollectoren aan de achterzijde op de 1e en 2e verdieping
Electrischebediende rolluiken aan de voorzijde op de begane grond, 1e en 2e verdieping
Circa 17 meter diepe achtertuin met vrijstaande stenen schuur en achterom
Comfortabele vloerverwarming in de woonkamer
Erfdienstbaarheid van over-en uitpad
Energielabel D
Let op:
Vanwege de bouwperiode van de woning wordt een standaard ouderdoms- en asbestclausule van Vastgoed Nederland opgenomen. Voor vragen hierover kunt u contact opnemen met uw aankoopmakelaar of met ons.
Maak snel een afspraak voor een bezichtiging van deze ruime en sfeervolle woning in Slikkerveer!
Meetinstructie:
De meetinstructie is gebaseerd op de NEN2580 en bedoeld om een eenduidige manier van meten toe te passen voor het geven van een indicatie van de gebruiksoppervlakte. De instructie sluit verschillen in meetuitkomsten niet volledig uit, door bijvoorbeeld interpretatieverschillen, afrondingen of beperkingen bij het uitvoeren van de meting.
Disclaimer:
Bovenstaande informatie is vrijblijvend en informatief van aard en mag uitsluitend worden beschouwd als een uitnodiging tot het maken van een afspraak. De beschrijving, opgegeven maten en foto's zijn globaal en indicatief. Er kunnen geen rechten aan worden ontleend.
Plattegronden
173017096_1554394_graaf_begane_grond_first_design_20250521_edf596.jpg
173017096_1554394_graaf_eerste_verdiepi_first_design_20250521_9ed328.jpg
173017096_1554394_graaf_tweede_verdiepi_first_design_20250521_cee043.jpg
173017096_1554394_graaf_berging_first_design_20250521_d45f45.jpg