Beschrijving

Ben je op zoek naar een fantastisch, instapklaar en uitstekend onderhouden 3-kamerappartement?
Dan zou dit zomaar jouw nieuwe thuis kunnen zijn!

Dit sfeervolle appartement combineert comfort, ruimte en een moderne afwerking. Ideaal voor wie zorgeloos wil verhuizen en direct wil genieten van een prettige woonomgeving.

Gelegen op de derde en tevens bovenste verdieping, biedt dit fraaie appartement een slimme indeling en veel wooncomfort. Perfect voor starters, jonge gezinnen of iedereen die op zoek is naar een instapklare woning. Het geheel is met zorg onderhouden en tot in de puntjes verzorgd.
De woning beschikt over een ruime en sfeervolle woonkamer met veel lichtinval, een nette keuken, een badkamer, twee slaapkamers, een zonnig balkon en een eigen, royale berging in de onderbouw.
De ligging is bijzonder gunstig: op korte afstand van metrohalte Vijfsluizen en Troelstralaan, bushaltes en de oprit naar de A4. Dankzij de nabijheid van de Beneluxtunnel en Vlaardingen is de bereikbaarheid uitstekend. Daarnaast ligt het groene Vlaardingerdijk Park letterlijk om de hoek. Ook het gezellige centrum van Schiedam, met zijn historische binnenstad, theater, musea, winkels en diverse horecagelegenheden, bevindt zich op korte afstand.

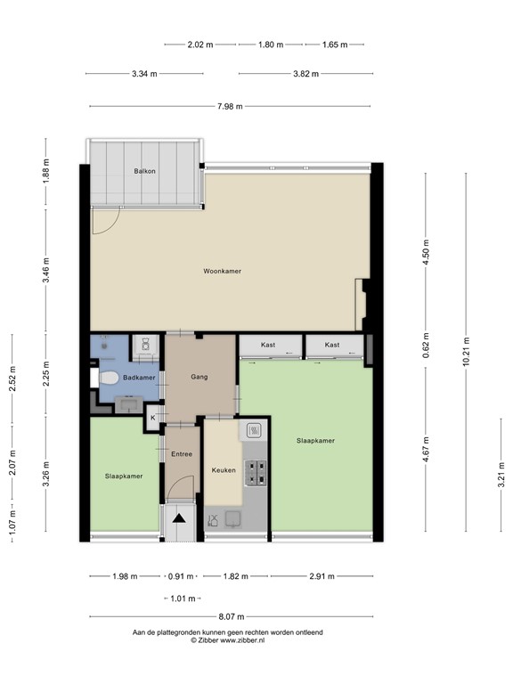
Indeling:

Begane grond:
Afgesloten entree met bellen- en brievenbussentableau, lift, trappenhuis en toegang tot de bergingen.

Derde verdieping:
Entree, ruime hal, intercom, meterkast en toegang tot alle vertrekken. De lichte en sfeervolle woonkamer kenmerkt zich door grote raampartijen, waardoor je geniet van een mooi uitzicht op het groen en een overvloed aan natuurlijk licht. De ruimte is afgewerkt met een nieuwe laminaatvloer en beschikt over airconditioning (2024). Vanuit de woonkamer bereik je het op het westen gelegen fijne balkon.
De lichte keuken bevindt zich aan de galerijzijde en is uitgerust met een vaatwasser, 4-pits gaskookplaat, afzuigkap, combimagnetron, koelkast en vriezer.
De badkamer is voorzien van een douche, toilet,  wastafelmeubel met spiegel en een op maat gemaakte kast met opstelplaats voor de wasmachine en eventueel een droger.
De ruime hoofdslaapkamer beschikt over een praktische inbouwkast. De tweede slaapkamer, momenteel in gebruik als kastenkamer, ligt eveneens aan de rustige galerijzijde. 

Enthousiast geworden? Plan dan snel een bezichtiging en ervaar zelf het wooncomfort van dit appartement!

Bijzonderheden
Goed onderhouden appartementencomplex
Bouwjaar: 1958
Fundering risico-indicator: 1= D of E.
Gratis parkeergelegenheid voor de deur
Woonoppervlakte: ca. 77 m²
Actieve en gezonde VvE, bijdrage € 160,- per maand
Voorzijde voorzien van kunststof kozijnen (2024)
De achterzijde is voorzien van dubbele beglazing en de voorzijde van HR++-glas
Nieuwe laminaatvloer (2024), m.u.v. kleine slaapkamer
Cv-ketel uit 2023
Zeer ruime inpandige berging (ca. 15 m²) op de begane grond
Ouderdoms- en asbestclausule van toepassing
Oplevering in overleg


Vele vinden dat een huis verkocht is wanneer je er samen mondeling uit bent gekomen wat betreft de prijs en de voorwaarden. En dat is begrijpelijk, want zo was het tot enkele jaren geleden ook gewoon. Het antwoord is 'nee'. Dit alles heeft te maken met het schriftelijkheidsvereiste wat is geregeld in artikel 7:2 lid 1 van het Burgerlijk Wetboek. Hierin staat geschreven dat een overeenkomst voor woningen alleen kan worden aangegaan met een, door beide partijen, ondertekende overeenkomst. Zolang er dus geen handtekening staat onder koopovereenkomst tussen partijen zijn beide partijen niet verplicht om tot definitieve koop over te gaan. 

De Meetinstructie is gebaseerd op de NEN2580. De Meetinstructie is bedoeld om een meer eenduidige manier van meten toe te passen voor het geven van een indicatie van de gebruiksoppervlakte. De Meetinstructie sluit verschillen in meetuitkomsten niet volledig uit, door bijvoorbeeld interpretatieverschillen, afrondingen of beperkingen bij het uitvoeren van de meting. De informatieverstrekking mag niet als aanbieding of offerte worden beschouwd. Het dient slechts als uitnodiging tot het doen van een bod. Aan deze gegevens kunnen geen rechten worden ontleend. De makelaar kan op generlei wijze aansprakelijk worden gesteld voor de over het object verstrekte informatie.

Kenmerken