Onder bod
Beschrijving
Dit fantastisch appartement met veel licht inval hebben wij in prijs mogen verlagen. Met wat liefde en aandacht wordt het mogelijk jouw huis. Dit is stads wonen zoals het bedoeld is. Profiteer van de lagere prijs en maak het helemaal zoals jij het wilt hebben!Midden in het bruisende hart van Rotterdam ligt dit sfeervolle 3-kamer appartement, waar stadse levendigheid en comfortabel wonen moeiteloos samenkomen. Vanuit de woning kijk je uit op het groen van de bomen én op iconische Rotterdamse blikvangers zoals de Kubuswoningen en het Witte Huis.
De lichte woonkamer vormt het hart van het appartement en geeft toegang tot een zonnig balkon – een fijne plek om even buiten te zitten en te genieten van alles wat de stad te bieden heeft. Voorheen beschikte het appartement over twee volwaardige slaapkamers. De tweede slaapkamer is nu bij de woonkamer betrokken, maar kan heel eenvoudig weer terug gebracht worden als slaapkamer, ideaal voor slapen, werken of logeren.
Hier woon je letterlijk met alles binnen handbereik: winkels, horeca, openbaar vervoer en culturele hotspots liggen om de hoek. Stads wonen met gemak, sfeer en karakter. Precies zoals het hoort.
Wonen in het hart van Rotterdam betekent leven op een plek waar altijd iets gebeurt. De Stadsdriehoek vormt het kloppende middelpunt van de stad en combineert wonen, werken en ontspannen op een unieke manier. De sfeer van het voormalige havengebied gaat hier naadloos samen met eigentijdse hotspots, waardoor het gebied continu in beweging is. Populaire plekken zoals de Markthal, de Pannekoekstraat, de Oude Haven en de Meent liggen letterlijk om de hoek. Hier vind je een veelzijdig aanbod aan winkels, boetieks, restaurants en gezellige cafés. Ook de Hoogstraat mag niet ontbreken: hip, creatief en vol vernieuwende speciaalzaken. Dankzij de centrale ligging zijn alle stadsgemakken binnen handbereik. Supermarkten, sportvoorzieningen en openbaar vervoer bevinden zich op loopafstand. Bovendien wordt het Binnenrotteplein twee keer per week omgetoverd tot de Rotterdamse Markt, waar je snel en gemakkelijk verse producten haalt. Hier ervaar je het stadse leven op z’n best. Wil je toch even de rust opzoeken, met 10 minuten lopen bevindt je jezelf tussen de Willemsbrug en de Erasmusbrug of loop je richting het park bij de Euromast.
Indeling
Begane grond:
Gezamenlijk nette entree met bellentableau, trappenhuis en lift naar de etages.
5e etage:
Binnenkomst in de ruime hal met plek voor een garderobe en toegang tot alle vertrekken in het appartement. De ruime woonkamer is heerlijk licht door de grote raampartijen. Doordat de tweede slaapkamer bij de woonkamer betrokken is, biedt dit een fijne plek voor een sfeervolle zit- en eethoek. Door aanwezigheid van de bestaande slaapkamerdeur, is een 2e slaapkamer makkelijk te realiseren. Daarnaast bereik je vanuit de woonkamer het zonnige inpandige balkon (ca. 5m2, zuiden), waar je kan genieten van de buitenlucht en de stadse sferen. Hier begeef je je in het hart van de stad!
De riante halfopen keuken beschikt over diverse keukenapparatuur. Daarnaast heb je er voldoende ruimte voor het plaatsen van bijvoorbeeld een losse koelvries-combinatie. Tevens heb je hier een leuk doorkijkje naar de woonkamer en via het keukenraam richting de Markthal.
Aan de achterzijde van de woning vind je de eerste slaapkamers. Een comfortabel slaapkamers met voldoende invallicht. De badkamer beschikt o.a. over een ruime douchecabine met afsluitbare glazenschuifdeuren en een wastafel. Terug in de hal vind je naast de badkamer een separaat toilet met fonteintje, en een afgesloten voorraadkast met de wasmachineaansluiting. Ook de meterkast is hier te vinden.
Bij deze woning hoort een externe berging van circa 4m2 gelegen in de onderbouw.
Afmetingen
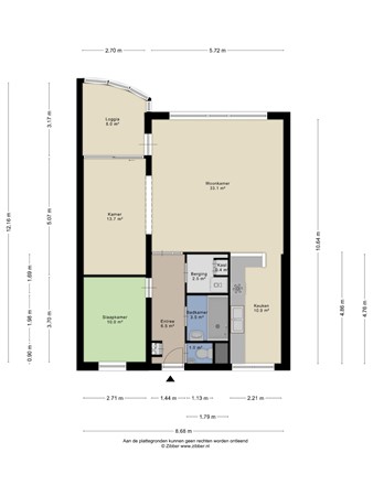
Voor de afmetingen en indeling zie onze gedetailleerde plattegrond.
Erfpachtcanon mogelijkheden:
Voor een koper is het mogelijk om de erfpachtcanon aanvullend af te kopen voor 50 jaar.
De mogelijkheid om hiervoor een aanbod aan te vragen bestaat er voor de koper tot één maand na de datum van overdracht. Als indicatie voor de afkoopsom van de woning aan de Mariniersweg 355 te Rotterdam, geldt een bedrag ad € 6.000,00 - € 7.000,- voor 50 jaar. Aan deze indicatie kunnen geen rechten worden ontleend gezien de gemeente Rotterdam u als nieuwe eigenaar van de woning een voorstel zal doen.
Als de koper kiest voor aanvullende afkoop tot en met de einddatum van het erfpachtrecht, dan heeft de koper pas na 5 jaar de mogelijkheid om de grond te kopen. Kiest de koper voor aanvullende afkoop? Dan ontvangt de koper geen aanbod vanuit het erfpachtproject. De koper kan zelf na 5 jaar een verzoek indienen voor het kopen van de grond (conversie).
Op vertoon van een getekende koopovereenkomst kan de koper een definitieve aanbieding aanvragen via: erfpacht@.rotterdam.nl. De gemeente heeft het erfpachtbeleid vernieuwd per 1 januari 2026. U kunt hier meer over lezen via onze webpagina www.rotterdam.nl/erfpacht.
Bijzonderheden:
• Door aanwezigheid van de bestaande slaapkamerdeur, is een 2e slaapkamer makkelijk te realiseren.
• Bouwjaar: 1989
• Woonoppervlakte circa 87 m2
• Inhoud circa 313 m3
• Inclusief externe berging circa 4 m2
• De erfpachtgegevens zijn:
- Ingangsdatum erfpachtrecht: 01-09-1987
- Einddatum erfpachtrecht: 31-08-2086
- De canon is afgekocht tot en met 31-08-2037
• Verwarming en warm water middels stadsverwarming
• Volledig voorzien van dubbele beglazing
• Energielabel-A
• Fundering risico-indicator: 0 = A, B, C (Geen verhoogd risico) / Bron Fundermaps!
• Goed functionerende, actieve Vereniging van Eigenaars; bijdrage volgens begroting 2026 c.a. €203,10,- per maand
• In de directe omgeving zijn alle dagelijkse voorzieningen te vinden, zoals openbaar vervoer, winkels, horeca,
goede verbinding tot uitvalswegen en recreatiemogelijkheden
• Oplevering kan snel!
Wij nodigen je van harte uit om dit appartement in Rotterdam met eigen ogen te bewonderen.
Bel voor een vrijblijvende afspraak. We geven graag de mogelijkheden door!
De Meetinstructie is gebaseerd op de NEN2580. De Meetinstructie is bedoeld om een meer eenduidige manier van meten toe te passen voor het geven van een indicatie van de gebruiksoppervlakte. De Meetinstructie sluit verschillen in meetuitkomsten niet volledig uit, door bijvoorbeeld interpretatieverschillen, afrondingen of beperkingen bij het uitvoeren van de meting.
De informatieverstrekking mag niet als aanbieding of offerte worden beschouwd. Het dient slechts als uitnodiging tot het doen van een bod. Aan deze gegevens kunnen geen rechten worden ontleend. De makelaar kan op generlei wijze aansprakelijk worden gesteld voor de over het object verstrekte informatie.
--------------------------------------------------------------------------------------------------
Fantastic apartment on a great location. With some love and attention, it will truly feel like home. This is city living as it was meant to be!.
This charming 3-room apartment is located in the heart of Rotterdam, where urban vibrancy and comfortable living effortlessly blend. From the apartment, you look out onto the greenery of the trees and iconic Rotterdam landmarks such as the Cube Houses and the White House.
The bright living room is the heart of the apartment and opens onto a sunny balcony – a lovely place to relax and enjoy everything the city has to offer. Previously, the apartment had two full bedrooms. The second bedroom is now integrated into the living room but can easily be converted back into a bedroom, ideal for sleeping, working, or staying overnight.
Here you live with everything literally at your fingertips: shops, restaurants, public transport, and cultural hotspots are just around the corner. City living with convenience, atmosphere, and character. Just as it should be.
Living in the heart of Rotterdam means living in a place where there's always something happening. The Stadsdriehoek (City Triangle) is the vibrant hub of the city and uniquely combines living, working, and relaxing. The atmosphere of the former harbor area blends seamlessly with contemporary hotspots, keeping the area constantly vibrant. Popular spots like the Markthal, Pannekoekstraat, Oude Haven, and Meent are literally around the corner. Here, you'll find a diverse range of shops, boutiques, restaurants, and cozy cafés. Hoogstraat is also a must-see: hip, creative, and full of innovative specialty stores. Thanks to its central location, all the amenities of the city are within easy reach. Supermarkets, sports facilities, and public transport are all within walking distance. Moreover, Binnenrotteplein is transformed twice a week into the Rotterdam Market, where you can quickly and easily pick up fresh produce. Here, you'll experience city life at its best. If you'd prefer some peace and quiet, a 10-minute walk will take you between the Willemsbrug and Erasmusbrug, or towards the park near the Euromast.
Layout
Ground floor:
Shared, neat entrance with doorbells, staircase, and elevator to the upper floors. 5th floor:
Enter into the spacious hall with space for a wardrobe and access to all rooms in the apartment. The large windows make the spacious living room wonderfully bright. Because the second bedroom is connected to the living room, it offers a lovely spot for a cozy sitting and dining area. From the living room, you also access the sunny, south-facing balcony (approx. 5m²), where you can enjoy the fresh air and the city atmosphere. Here, you're right in the heart of the city!
The spacious semi-open kitchen is equipped with various appliances. There's also ample space for a separate fridge-freezer, for example. From here, you also have a pleasant view into the living room and, through the kitchen window, towards the Markthal.
At the rear of the apartment, you'll find the first bedroom. These are comfortable bedrooms with plenty of natural light. The bathroom features a spacious shower with lockable sliding glass doors and a sink. Back in the hall, next to the bathroom, you'll find a separate toilet with a small sink and a locked pantry with the washing machine connection. The meter cupboard is also located here.
This property includes an external storage room of approximately 4m² located in the basement.
Dimensions
For the dimensions and layout, see our detailed floor plan.
Ground Lease Options:
It is possible for a buyer to additionally buy off the ground lease.
Buyers can request an offer for this up to one month after the transfer date. The estimated buyout price for the property at Mariniersweg 355 in Rotterdam is €6,000 - €8,000. No rights can be derived from this estimate, as the Municipality of Rotterdam will make you, the new owner, a proposal.
If the buyer opts for the additional buyout up to and including the leasehold's expiry date, they will only have the option to purchase the land after five years. If the buyer opts for the additional buyout, they will not receive an offer from the ground lease project. They can submit a request to purchase the land (conversion) themselves after five years.
Upon presentation of a signed purchase agreement, the buyer can request a final offer via erfpacht@.rotterdam.nl. The municipality has updated its leasehold policy as of January 1, 2026. You can read more about this on our website www.rotterdam.nl/erfpacht.
Details:
• Due to the presence of the existing bedroom door, a second bedroom is easy to create.
• Year of construction: 1989
• Living area approximately 87 m²
• Volume approximately 313 m³
• Includes external storage of approximately 4 m²
• The leasehold details are:
- Leasehold commencement date: September 1, 1987
- Leasehold expiry date: August 31, 2086
- The leasehold has been bought off until August 31, 2037
- At the start of the buyout period, the leasehold was €819.53 per year
• Heating and hot water via district heating
• Fully double-glazed windows
• Energy label A
• Well-functioning, active Owners' Association; Contribution according to the 2026 budget: approximately €203.10 per month
• In the immediate vicinity
The Measurement Instructions are based on the NEN2580 standard. The Measurement Instructions are intended to apply a more consistent measuring method to provide an indication of the usable area. The Measurement Instructions do not completely exclude differences in measurement results, for example due to differences in interpretation, rounding, or limitations in performing the measurement.
The information provided should not be considered an offer or quotation. It serves only as an invitation to submit an offer. No rights can be derived from this information. The broker cannot be held liable in any way for the information provided about the property.
Kenmerken
| Overdracht | |
|---|---|
| Referentienummer | 00744 |
| Vraagprijs | € 395.000,- k.k. |
| Servicekosten | € 204,- |
| Status | Onder bod |
| Aanvaarding | Direct |
| Aangeboden sinds | Donderdag 2 april 2026 |
| Laatste wijziging | Dinsdag 28 april 2026 |
| Bouw | |
|---|---|
| Type object | Appartement, galerijflat |
| Woonlaag | 5e woonlaag |
| Soort bouw | Bestaande bouw |
| Bouwperiode | 1989 |
| Type dak | Platdak |
| Oppervlaktes en inhoud | |
|---|---|
| Woonoppervlakte | 95 m² |
| Inhoud | 313 m³ |
| Oppervlakte externe bergruimte | 4 m² |
| Indeling | |
|---|---|
| Aantal bouwlagen | 1 |
| Aantal kamers | 3 (waarvan 2 slaapkamers) |
| Locatie | |
|---|---|
| Ligging | Dichtbij openbaar vervoer In centrum Nabij school |
| Energieverbruik | |
|---|---|
| Energielabel | A |
| Uitrusting | |
|---|---|
| Heeft schuur/berging | Ja |
| Heeft een schuifpui | Ja |
| Vereniging van Eigenaren | |
|---|---|
| Ingeschreven bij de KvK | Ja |
| Jaarlijkse vergadering | Ja |
| Periodieke bijdrage | Ja |
| Reservefonds | Ja |
| Meer jaren onderhoudsplan | Ja |
| Onderhoudsverwachting | Ja |
| Opstal verzekering | Ja |
| Kadastrale gegevens | |
|---|---|
| Kadastrale aanduiding | Rotterdam AF 46 |
| Omvang | Appartementsrecht of complex |
| Eigendomsituatie | Eigendom belast met erfpacht |
| Indexnummer | A |
| Lasten | Met afkoopoptie, afgekocht tot 30-08-2037 |